网站首页
关于我们
新闻资讯
产品展示
官方登录入口
桥梁模具
箱涵管廊
路沿石模具
路沿石官方登录入口
路沿石塑料模具
U型槽模具
U形槽官方登录入口
U形槽塑料模具
隔离墩模具
隔离墩官方登录入口
化粪池模具
化粪池官方登录入口
检查井模具
检查井官方登录入口
井盖模具
井盖官方登录入口
井盖塑料模具
电力盖板模具
电力盖板官方登录入口
电力盖板塑料模具
高铁、铁路工程模具
高铁、铁路工程官方登录入口
高铁、铁路工程塑料模具
护坡模具
护坡官方登录入口
护坡塑料模具
花墙砖模具
花墙砖官方登录入口
花墙砖塑料模具
塑料模具
防撞墙模具
挂篮模板
风电基础模板
模具世界
模具加工
模具制品
模具公司
模具工业
官方登录入口
模具加工
发布时间:2020-03-19 06:16:25
CONTACT
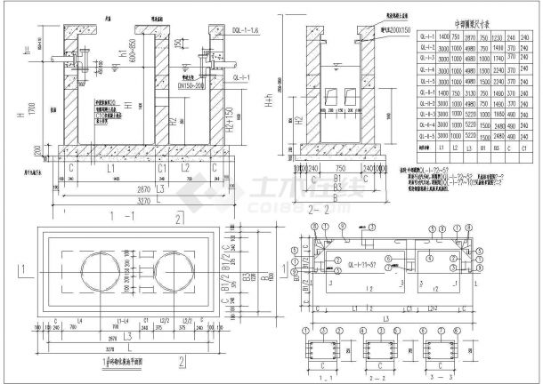
化粪池模具厂:某小区的化粪池施工结构图
化粪池结构图1
化粪池结构图2
化粪池结构图3
化粪池结构图4
上一篇:
隔离墩模具厂:隔离墩的安装工具和方法介绍
下一篇:
[化粪池模具厂]家用化粪池的标准尺寸
热门新闻
| NEWS
翰轩钢模板厂高层召开了目···
风电基础模板的拼装及每平···
PC预制墙板模具的生产厂···
预制阳台板模具在建筑中的···
乐玩手机版
|
新半岛官方网站_半岛(中国)
|
多宝网页版
|
江南登录网站_江南(中国)
|
乐动网页_乐动(中国)
|
华体官方网页版_华体(中国)
|
米兰网站登录入口
|
乐玩在线(中国)唯一官方网站
|
米兰平台_米兰平台(中国)股份有限公司
|